Hochwasserschutz - Schwingtor E (Einbau hinter der Öffnung)

Beschreibung

Mit dem Hochwasserschutz - Schwingtor von steinau bleibt Ihre Garage auch bei Starkregen und Hochwasser zuverlässig trocken. Das innovative und zertifizierte Dichtungssystem schützt Ihr Eigentum – ohne Kompromisse bei Design oder Komfort. 



Torrahmen

  • Aus stabilen, verwindungsfreien Profilstahlrohren feuerverzinkt nach statischen Erfordernissen
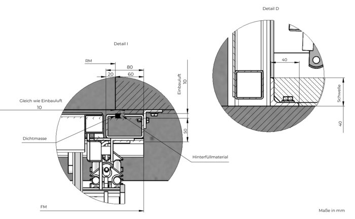
  • Geeignet für den Einbau hinter der Leibung.


Torrahmen (Stockrahmen) im Standard:

  • Links & rechts: 80 mm (80 x 50 mm)
  • Oben: 40 mm (40 x 40 mm)


Anschlagschiene Edelstahl

  • 40 x 40 mm - optional 50 x 50 mm Bautiefe mit Anschlagschiene 40 mm = 90 mm
  • Bautiefe mit Anschlagschiene 50 mm = 100 mm


Torflügel


  • Massive Rahmenkonstruktion mit statischem Nachweis, elektrisch geschweißt, Torverschalung außen aufgeklebt, Aluminium 2 mm.


Oberflächenbeschichtung 

  • Feuerverzinkung 1) (Vollbad-Verzinkung)  

1) Durch die Feuerverzinkung können Unebenheiten in der lackierten Oberfläche entstehen. Diese sind fertigungsbedingt und stellen keinen Mangel dar.

  • Rahmenkonstruktion und Torfüllung (außen & innen) lackiert.


Torbedienung/Verriegelung

  • Manuell oder mit Antrieb (soptionales Zubehör)


Beschlag

Wartungsfreier Hebelbeschlag, kugelgelagerte Kunststofflaufrollen und Führungsschienen verzinkt. Gewichtsausgleich mit Multi-Federpaket nach EN-Norm mit Feineinstellungen und Absturzsicherung. Anschlag des Torflügels durch Gummipuffer in den Laufschienen Ausführung nach derzeit geltenden EU-Normen.



Dichtheit

  • Zertifiziertes Dichtungssystem
  • Hochwasserbeständig entsprechend der IFT Richtlinie FE-07/1 wird gewährleistet
  • Das steinau Hochwasserschutz - Schwingtor hält 99 % des Wassers ab. Es gelangen höchstens 240L / 24h in die Garage, eine Menge, die Sie problemlos aufwischen können. Oft dringt in der Praxis sogar noch weniger Wasser in Ihre Garage ein!
  • Das steinau Hochwasserschutz - Schwingtor ist, je nach Torhöhe, bis zu 1.500 mm Wasserhöhe hochwasserbeständig.
  • Die Tests werden mit reinem Klarwasser durchgeführt. Da aber Hochwasser immer verschmutzt ist, verstärken die Schmutzartikel den Wasserschutzeffekt, denn sie verschließen die winzigen, noch verbleibenden Wege für das Wasser.
  • "Hochwasserbeständig" heißt also in der Praxis, dass von den Tausenden von Litern, die Ihr Gebäude bedrohen, nur ein winziger Bruchteil von maximal 240L / 24h durchsickern kann.
  • Mindestens 4 Stück manuelle Verriegelungen an der Torblattunterkante. Zur Herstellung der Hochwasser- beständigkeit müssen diese manuell verriegelt werden, die Anzahl dieser Verriegelungen ist abhängig von der Torbreite. Zudem wird durch das Verschließen der manuellen Verriegelungen der Einbruchschutz deutlich erhöht.
  • * siehe Betriebsanleitung


Sicherheit
  • TÜV - geprüfte Sicherheit.
  • Änderung oberer Torrahmen (Stockrahmen) möglich. Eine Änderung der seitlichen Torrahmen (Stockrahmen) ist nicht möglich.

Eigenschaften

Einbauart
Hinter der Öffnung
Maße
Breite ↓ / Höhe → 2300 2400 2500 2600 2700 2800 2900 3000 3100 3200 3300 3400 3500 3600 3700
2120 2120 × 2300 2120 × 2400 2120 × 2500 2120 × 2600 2120 × 2700 2120 × 2800 2120 × 2900 2120 × 3000 2120 × 3100 2120 × 3200 2120 × 3300 2120 × 3400 2120 × 3500 2120 × 3600 2120 × 3700
2200 2200 × 2300 2200 × 2400 2200 × 2500 2200 × 2600 2200 × 2700 2200 × 2800 2200 × 2900 2200 × 3000 2200 × 3100 2200 × 3200 2200 × 3300 2200 × 3400 2200 × 3500 2200 × 3600 2200 × 3700
2220 2220 × 2300 2220 × 2400 2220 × 2500 2220 × 2600 2220 × 2700 2220 × 2800 2220 × 2900 2220 × 3000 2220 × 3100 2220 × 3200 2220 × 3300 2220 × 3400 2220 × 3500 2220 × 3600 2220 × 3700
2320 2320 × 2300 2320 × 2400 2320 × 2500 2320 × 2600 2320 × 2700 2320 × 2800 2320 × 2900 2320 × 3000 2320 × 3100 2320 × 3200 2320 × 3300 2320 × 3400 2320 × 3500 2320 × 3600 2320 × 3700
2420 2420 × 2300 2420 × 2400 2420 × 2500 2420 × 2600 2420 × 2700 2420 × 2800 2420 × 2900 2420 × 3000 2420 × 3100 2420 × 3200 2420 × 3300 2420 × 3400 2420 × 3500 2420 × 3600 2420 × 3700
2520 2520 × 2300 2520 × 2400 2520 × 2500 2520 × 2600 2520 × 2700 2520 × 2800 2520 × 2900 2520 × 3000 2520 × 3100 2520 × 3200 2520 × 3300 2520 × 3400 2520 × 3500 2520 × 3600 2520 × 3700

Farben

CH 703 Anthrazit Metallic
NCS nach Wahl
RAL 1015 Hellelfenbein
RAL 6005 Moosgrün
RAL 6009 Tannengrün
RAL 7012 Basaltgrau
RAL 7015 Schiefergrau
RAL 7030 Steingrau
RAL 7035 Lichtgrau
RAL 7039 Quarzgrau
RAL 7040 Fenstergrau
RAL 8028 Terrabraun
RAL 9005 Tiefschwarz
RAL 9006 Weißaluminium
RAL 9007 Graualuminium
RAL nach Wahl
Standard Verkehrsweiß, in Anlehnung an RAL 9016
RAL 7016 Anthrazit
Schließen
Menü schließen