Deckenlauftore

Das Deckenlauftor vereint die Vorteile eines Sektionaltores mit der eleganten Optik eines Rolltors. Es öffnet senkrecht nach oben, spart Raum vor und in der Garage und ermöglicht eine volle Durchfahrtsbreite – ohne Ausschwenken.

Durch den geringen Sturzanschlag ist es ideal für Renovierungen. Geliefert wird es ausschließlich als komfortable Automatik-Einheit mit dem bewährten steinau-Garagentor-Antrieb. Die doppelwandigen Aluminiumprofile mit 77 mm Profilhöhe, ausgeschäumt mit Polyurethan-Hartschaum, verleihen dem Tor eine edle, leichte Optik.

Für die individuelle Gestaltung stehen 15 Standardfarben und 4 hochwertige Dekore/Oberflächen zur Auswahl. Flexible Einbaumöglichkeiten erlauben die Montage hinter oder in der Garagentoröffnung – für maximale Anpassung.

  • Deckenlauftore
  • Deckenlauftore

Serienausstattung

  • Torblatt aus doppelwandigen PU-Aluminiumprofilen
  • Aluminium-Führungsschienen
  • Abriebfeste Laufrollen
  • Alu-Leiste mit Gummiprofil und Dichtlippe
  • Bürsteneinlagen und -dichtung
  • Antrieb E60 mit LED-Beleuchtung, 1-Tasten-Handsender
  • Größenbereich: Bis 3.500 mm Breite, bis 3.000 mm Höhe

Sicherheitsausstattung

  • Einbruchhemmende Hochschiebesicherung
  • Automatische Hinderniserkennung
  • Sanft-Anlauf und Sanft-Stopp

Zusatzausstattungen

  • steinau Torantriebe für Netz- und Akku-Betrieb
  • Verschiedene Antriebs-Bedienelemente
  • Sichtfenster aus doppelwandigem Polycarbonat
  • Lüftungsgitter aus PVC
  • Notentriegelung

Oberflächen und Farben

Oberfläche

Aluminiumprofile 
Zeitlos modernes Design 
durch glatte Aluminiumprofile

Deckenlauftore

Standardfarben

RAL 9016 Verkehrsweiß

RAL 9001 Cremeweiß

RAL 1015 Hellelfenbein

RAL 7038 Achatgrau

RAL 7035 Lichtgrau

RAL 9006 Weißaluminium

RAL 9007 Graualuminium

RAL 7015 Schiefergrau

RAL 7016 Anthrazitgrau

RAL 3004 Purpurrot

RAL 3003 Rubinrot

RAL 8028 Terrabraun

RAL 5011 Stahlblau

RAL 6005 Moosgrün

RAL 9005 Tiefschwarz

Dekore und Oberflächen

Decograin Dekore

Echte Holzoptik, die begeistert: Die kratzfeste, UV-beständige Folienbeschichtung verleiht Ihrem Tor eine edle, natürliche Ausstrahlung.

Golden Oak Decograin

Rosewood Decograin

Decopaint Oberflächen

Schöne Holzoptik, clever gespart: Außen wie innen lackiert, bieten die Decopaint-Dekore eine stilvolle und preiswerte Lösung mit warmer Ausstrahlung.

Golden Oak Decopaint*

Rosewood Decopaint*

*Decopaint-Oberfläche auf der Außen- und Innenseite der Profile. Zarge, Führungsschienen, 
  Sturzblende und Winkelwellenverkleidung werden dem Dekor farblich angepasst.

Größen und Einbaudaten Deckenlauftore

Größen

Einbaudaten

Ansicht Anschlagseite

Horizontalschnitte

Einbau in der Öffnung, Ansicht innen

Einbau flächenbündig in der Öffnung mit Blende 95

Einbau hinter der Öffnung, Ansicht Anschlagseite

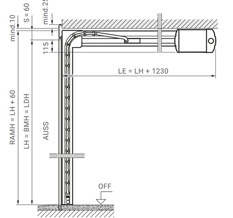
Vertikalschnitte

Einbau in der Öffnung, Ansicht innen

Einbau flächenbündig in der Öffnung mit Blende 95

Einbau hinter der Öffnung, Ansicht Anschlagseite

Antriebe, Handsender und Zubehör für Ihr Garagentor

Entdecken Sie unser umfangreiches Sortiment an hochwertigen Antrieben und Zubehör für Ihr Garagentor. Von leistungsstarken Garagentorantrieben über praktische Handsender und moderne Steuerungslösungen bis hin zu zuverlässigen Sicherheitsfeatures – hier finden Sie alles, um Ihr Garagentor komfortabel, sicher und perfekt ergänzt auszustatten.

Jetzt entdecken

Downloads

Informieren Sie sich jetzt – klicken Sie auf eine Broschüre für weiterführende Details.

Unsere Produkte überzeugen Sie?

Finden Sie jetzt ihre Niederlassung in der Nähe!

Niederlassung finden
Schließen
Menü schließen