Rolltore

Das Rolltor aus doppelwandigen Aluminiumprofilen überzeugt mit eleganter Rollladenoptik, perfekt abgestimmt auf moderne Fensterrollläden. Es öffnet senkrecht nach oben, spart Platz vor und in der Garage und hält den Deckenbereich frei – ideal für Beleuchtung oder Stauraum. 

Ob als Automatiktor, Außenrolltor, Hand-Rolltor oder mit ansichtsgleicher Nebentür – steinau bietet die passende Lösung. Dank intelligenter Konstruktion eignen sich unsere Rolltore auch für schwierige Einbausituationen wie niedrige Sturzhöhen, enge Platzverhältnisse oder spezielle Garagenformen. Mit 15 Standardfarben und 4 Dekoren/Oberflächen passen sich die Tore harmonisch an jede Architektur an. Die Variante als Außenrolltor schafft zusätzlich maximale Freiheit bei knappem Platz im Innenraum.

  • Rolltore
  • Rolltore

Serienausstattung

  • Torantrieb inkl. 4-Tasten-Handsender
  • Garagenbeleuchtung, Sanft-Anlauf/Stopp
  • Verzinkte Führungsschienen
  • Doppelwandige Alu-Profile mit PU-Hartschaum
  • Hochwertige Beschichtung
  • Größe: Breite bis 5.000 mm, Höhe bis 3.100 mm
  • Torbehang, Führungsschiene, Sturzblende und Wickelwellenverkleidung
  • sind auf Wunsch in gleicher Farbe erhältlich

Sicherheitsausstattung

  • Verkleidete Wickelwelle
  • Absturzsicherung
  • Aufschiebesicherung*
  • Abschaltautomatik*
  • Sturmanker
  • Notentriegelung

*Nur in Kombination mit einem Antrieb

Zusatzausstattungen

  • steinau Torantriebe für Netz- und Akku-Betrieb
  • Außen-Rolltor
  • Hand-Rolltor
  • Ansichtsgleiche Nebentür, Bautiefe 60 mm
  • Verglasung
  • Lüftungsgitter
  • Schräges Bodenprofil
  • Sturz-Zusatzblende
  • Außen-Notentriegelung
  • Akustischer Alarmgeber
  • Mobile/stationäre Bedienelemente

Oberflächen und Farben

Oberfläche

Aluminiumprofile 
Zeitlos modernes Design 
durch glatte Aluminiumprofile

Rolltore

Standardfarben

RAL 9016 Verkehrsweiß

RAL 9001 Cremeweiß

RAL 1015 Hellelfenbein

RAL 7038 Achatgrau

RAL 7035 Lichtgrau

RAL 9006 Weißaluminium

RAL 9007 Graualuminium

RAL 7015 Schiefergrau

RAL 7016 Anthrazitgrau

RAL 3004 Purpurrot

RAL 3003 Rubinrot

RAL 8028 Terrabraun

RAL 5011 Stahlblau

RAL 6005 Moosgrün

RAL 9005 Tiefschwarz

Dekore und Oberflächen

Decograin Dekore

Echte Holzoptik, die begeistert: Die kratzfeste, UV-beständige Folienbeschichtung verleiht Ihrem Tor eine edle, natürliche Ausstrahlung.

Golden Oak Decograin

Rosewood Decograin

Decopaint Oberflächen

Schöne Holzoptik, clever gespart: Außen wie innen lackiert, bieten die Decopaint-Dekore eine stilvolle und preiswerte Lösung mit warmer Ausstrahlung.

Golden Oak Decopaint*

Rosewood Decopaint*

*Decopaint-Oberfläche auf der Außen- und Innenseite der Profile. Zarge, Führungsschienen, 
  Sturzblende und Winkelwellenverkleidung werden dem Dekor farblich angepasst.

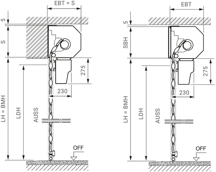
Größen und Einbaudaten Rolltore

Größen

Einbaudaten

Ansicht Anschlagseite

Einbau hinten / in der Öffnung – Innen-Rolltor

Einbau vor der Öffnung – Außen-Rolltor

Horizontalschnitte

Einbau hinter / in der Öffnung – Innen-Rolltor

Einbau vor der Öffnung – Außen-Rolltor

Vertikalschnitte

Einbau hinten / in der Öffnung – Innen-Rolltor

Einbau vor der Öffnung – Außen-Rolltor

Einbaudaten Rolltor Nebentür

Einbaudaten

Nebentür mit Blockzarge

Einbau hinter der Öffnung, nach innen öffnend

Nebentür mit Blockzarge

Einbau in der Öffnung, nach innen öffnen

Nebentür mit Blockzarge

Einbau in der Öffnung, nach außen öffnend

Nebentür mit Eckzarge

Innenanschlag, nach innen öffnend

Nebentür mit Eckzarge

Außenanschlag, nach außen öffnend

Antriebe, Handsender und Zubehör für Ihr Garagentor

Entdecken Sie unser umfangreiches Sortiment an hochwertigen Antrieben und Zubehör für Ihr Garagentor. Von leistungsstarken Garagentorantrieben über praktische Handsender und moderne Steuerungslösungen bis hin zu zuverlässigen Sicherheitsfeatures – hier finden Sie alles, um Ihr Garagentor komfortabel, sicher und perfekt ergänzt auszustatten.

Jetzt entdecken

Downloads

Informieren Sie sich jetzt – klicken Sie auf eine Broschüre für weiterführende Details.

Unsere Produkte überzeugen Sie?

Finden Sie jetzt ihre Niederlassung in der Nähe!

Niederlassung finden
Schließen
Menü schließen