Platzsparende Lösung für moderne Garagen
Unsere Sektionaltore öffnen senkrecht und schaffen so wertvollen Raum vor und in der Garage. Hochwertige Dichtungen bieten zuverlässigen Wetterschutz, während präzise verarbeitete Lamellen und unsichtbare Übergänge für ein elegantes Erscheinungsbild sorgen.
Serienmäßig in Verkehrsweiß erhältlich, bieten wir zudem eine große Auswahl an 15 RAL- Vorzugsfarben sowie RAL nach Wahl, NCS- und DB-Farben. Mit Matchcolor kombinieren Sie Garagentor, Haustür und Nebentür farblich harmonisch für ein stimmiges Gesamtbild.
*Nur in Kombination mit einem Antrieb
Für Garagen, die direkt ans Haus anschließen, sind doppelwandige Sektionaltore aus Stahl die ideale Lösung. Sie verbinden hohe Stabilität mit exzellenter Wärmedämmung und eignen sich damit perfekt für moderne, energieeffiziente Gebäude.
Die Sektionaltore aus Stahl von steinau sind in den Varianten DWS P und DWS P Thermo erhältlich. Je nach Bedarf stehen Lamellen mit einer Stärke von 42 mm oder 67 mm zur Verfügung. Die Thermo-Ausführung überzeugt durch getrennte Lamellen und zusätzliche Dichtungen, die Wärmeverluste deutlich reduzieren. So bleibt die Garage angenehm temperiert, während Energie effizient genutzt wird.
Doppelwandige Sektionaltore aus Stahl bieten nicht nur hervorragende Wärmedämmung, sondern auch eine besonders robuste und langlebige Konstruktion. Damit sind sie die perfekte Wahl für alle, die Wert auf Komfort, Energieeffizienz und Qualität legen.
Besonders für Garagen, die direkt ans Haus anschließen, empfehlen sich doppelwandige Sektionaltore aus Stahl. Für optimale Wärmedämmung bietet steinau doppelwandige Sicken (Tortyp DWS P/ DWS P Thermo) mit 42 mm oder 67 mm starken Lamellen. Die Thermo-Ausführung mit getrennten Lamellen und Zusatzdichtungen eignet sich ideal für energieeffiziente Gebäude.
Die Design-Elemente können Sie wie unten in den Toransichten bzw. wie gewünscht auf Ihrem Tor platzieren und kombinieren. Wählen Sie ansichtsgleiche Nebentüren für ein harmonisches Erscheinungsbild. steinau bietet passende Qualitäts-Haustüren zu vielen Sektionaltor-Motiven. Ihr steinau Fachberater unterstützt Sie gerne bei der Auswahl und berät Sie umfassend zu den Kombinationsmöglichkeiten.
Unsere doppelwandigen Sektionaltore und Nebentüren sind serienmäßig in Verkehrsweiß (RAL 9016) erhältlich. Darüber hinaus stehen 15 RAL-Vorzugsfarben sowie RAL nach Wahl, NCS- und DB-Farben zur Verfügung. Die Torinnenseite ist grundsätzlich in Grauweiß (RAL 9002) gehalten.
Doppelwandige Seiten-Sektionaltore werden standardmäßig in Verkehrsweiß (RAL 9016) geliefert. Optional sind sie in 15 RAL-Vorzugsfarben oder einem individuellen RAL-Farbton erhältlich. Auch hier ist die Innenseite stets Grauweiß (RAL 9002).
Tortypen DWS P, DWS P Thermo
| Raster-Torhöhe (RM) | Z min. DE * | Z LDH ** | N min. DE * | N LDH | L min. DE * | L LDH *** |
|---|---|---|---|---|---|---|
| 3.000 | 3.210 | 3.000 | 3.115 | 2.970 | ||
| 2.850 | 3.060 | 2.850 | 2.965 | 2.820 | ||
| 2.750 | 2.960 | 2.750 | 2.865 | 2.720 | ||
| 2.600 | 2.740 | 2.570 | 2.810 | 2.600 | 2.715 | 2.570 |
| 2.500 | 2.615 | 2.470 | 2.710 | 2.500 | 2.615 | 2.470 |
| 2.375 | 2.490 | 2.345 | 2.585 | 2.375 | 2.490 | 2.345 |
| 2.250 | 2.365 | 2.220 | 2.460 | 2.250 | 2.365 | 2.220 |
| 2.205 | 2.320 | 2.175 | ||||
| 2.125 | 2.240 | 2.095 | 2.335 | 2.125 | 2.240 | 2.095 |
| 2.080 | 2.195 | 2.050 | ||||
| 2.000 | 2.115 | 1.970 | 2.210 | 2.000 | 2.115 | 1.970 |
| 1.955 | 2.070 | 1.925 | ||||
| 1.900 | 2.015 | 1.870 | 2.110 | 1.900 | 2.015 | 1.870 |
* mit ThermoFrame und Antrieb: siehe Einbaudaten
** DWS P Thermo: LDH – 55 mm
*** DWS P: LZ > 3.010 mm = LDH – 80 mm
DWS P Thermo:
LZ ≤ 3.000 mm = LDH – 55 mm
LZ > 3.010 mm = LDH – 105 mm
| Raster-Torhöhe (RM) | Z min. DE * | Z LDH ** | N min. DE * | N LDH | L min. DE * | L LDH *** |
|---|---|---|---|---|---|---|
| 3.000 | 3.210 | 2.950 | 3.100 | 2.900 | ||
| 2.850 | 3.060 | 2.800 | 2.950 | 2.750 | ||
| 2.750 | 2.960 | 2.700 | 2.850 | 2.650 | ||
| 2.600 | 2.700 | 2.520 | 2.810 | 2.550 | 2.700 | 2.500 |
| 2.500 | 2.600 | 2.420 | 2.710 | 2.450 | 2.600 | 2.400 |
| 2.375 | 2.475 | 2.295 | 2.585 | 2.325 | 2.475 | 2.275 |
| 2.250 | 2.350 | 2.170 | 2.460 | 2.200 | 2.350 | 2.150 |
| 2.205 | 2.305 | 2.125 | ||||
| 2.125 | 2.225 | 2.045 | 2.335 | 2.075 | 2.225 | 2.025 |
| 2.080 | 2.180 | 2.000 | ||||
| 2.000 | 2.100 | 1.920 | 2.210 | 1.950 | 2.100 | 1.900 |
| 1.955 | 2.055 | 1.875 | ||||
| 1.900 | 2.000 | 1.820 | 2.110 | 1.850 | 2.000 | 1.800 |
* mit ThermoFrame und Antrieb: siehe Einbaudaten
** DWS P Thermo: LDH – 55 mm
*** DWS P: LZ > 3.010 mm = LDH – 80 mm
DWS P Thermo:
LZ ≤ 3.000 mm = LDH – 55 mm
LZ > 3.010 mm = LDH – 105 mm
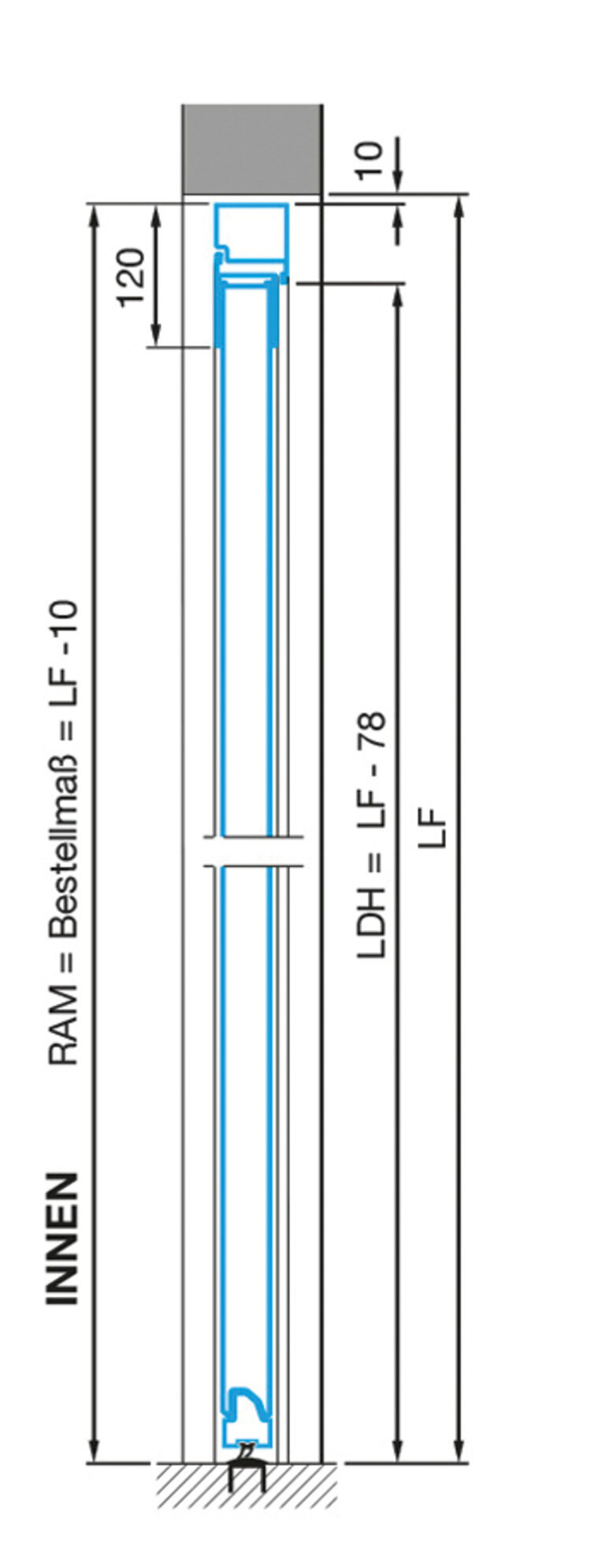
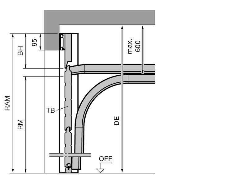
LDB = Lichte Durchfahrtsbreite
LDH = Lichte Durchfahrtshöhe
RM = Rastermaß
DE = Deckenhöhe
LZ = Lichtes Zargenmaß
LF = Lichtes Fertigmaß
RAM = Rahmenaußenmaß
GIM = Garageninnenmaß
ET = Einschubtiefe
| Tore mit Antrieb | Gesamtlänge (W) | ||
|---|---|---|---|
| Torhöhe max. | Z-Beschlag | N-Beschlag | L-Beschlag / H-Beschlag |
| 2.125 (K) | 3.200 | 3.200* | 3.200 |
| 2.250 (K) | 3.200** | ||
| 2.375 (M) | 3.450 | 3.450* | 3.450 |
| 2.500 (M) | 3.450** | ||
| 2.625 (L) | 4.125 | ||
| 3.000 (L) | 4.125 | 4.125 |
* Torhöhe max. nur für DWS P Thermo
** Torhöhe max. nur für DWS P
| Tore mit Antrieb | Gesamtlänge (W) | |
|---|---|---|
| Torhöhe max. | BZ-Beschlag | BL-Beschlag |
| 2.125 (K) | 3.272 | 3.272 |
| 2.375 (M) | 3.522 | 3.522 |
| 2.625 (L) | 4.197 | |
| 3.000 (L) | 4.197 |
| Raster-Torbreite (LZ) ► | 2.250 | 2.500 | 2.750 | 3.000 | 3.250 | 3.500 | 3.750 | 4.000 | 5.000 |
|---|---|---|---|---|---|---|---|---|---|
| Raster-Torhöhe (RM) ▼ | |||||||||
| 3.000 | x | x | x | x | x | ||||
| 2.850 | ○ | ○ | ○ | ○ | ○ | ||||
| 2.750 | x | x | x | x | x | x | x | ||
| 2.600 | ○ | ○ | ○ | ○ | ○ | ○ | ○ | ||
| 2.500 | x | x | x | x | x | x | x | ||
| 2.375 | x | x | x | x | x | x | x | x | |
| 2.250 | x | x | x | x | x | x | x | x | x |
| 2.205 | x | x | x | x | x | x | x | x | x |
| 2.125 | x | x | x | x | x | x | x | x | x |
| 2.080 | x | x | x | x | x | x | x | x | x |
| 2.000 | x | x | x | x | x | x | x | x | x |
| 1.900 | x | x | x | x | x | x | x | x | x |
○ = nicht möglich bei Decograin, Sandgrain und Silkgrain
| Lichte Durchgangshöhe | Drückerhöhe | |
|---|---|---|
| ohne Verglasung | mit Verglasung | ab OFF |
| 1.955 | 1.955 | 831 |
| 1.855 | 1.855 | 793 |
| 2.155 | 2.155 | 906 |
| 2.035 | 2.035 | 861 |
| 1.955 | 1.955 | 831 |
| 1.855 | 1.855 | 793 |
| 2.123 | 2.203 | 924 |
| 2.075 | 2.155 | 906 |
| 1.999 | 2.079 | 877 |
| 1.955 | 2.035 | 861 |
| 1.875 | 1.955 | 831 |
| 1.775 | 1.775 | 793 |
| Raster-Torhöhe (RM) ► | 2.250 | 2.500 | 2.750 | 3.000 | 3.250 | 3.500 | 3.750 | 4.000 |
|---|---|---|---|---|---|---|---|---|
| Raster-Torbreite (LZ) ▼ | ||||||||
| 3.000 | ||||||||
| 2.875 | □ | □ | □ | □ | □ | □ | □ | □ |
| 2.750 | □ | □ | □ | □ | □ | □ | □ | □ |
| 2.625 | □ | □ | □ | □ | □ | □ | □ | □ |
| 2.500 | ||||||||
| 2.375 | ||||||||
| 2.250 | ||||||||
| 2.205 | □ | □ | □ | □ | □ | □ | □ | □ |
| 2.125 | ||||||||
| 2.080 | □ | □ | □ | □ | □ | □ | □ | □ |
| 2.000 |
○ = nicht möglich bei Decograin, Sandgrain und Silkgrain
□ = nicht möglich bei Decograin
| Lichte Durchgangshöhe | Drückerhöhe |
|---|---|
| ab OFF | |
| 1.955 | 831 |
| 1.855 | 793 |
| 2.155 | 906 |
| 2.035 | 861 |
| 1.955 | 831 |
| 1.855 | 793 |
| 2.203 | 924 |
| 2.155 | 906 |
| 2.079 | 877 |
| 2.035 | 861 |
| 2.000 | 831 |
| Lichtes Fertigmaß der Öffnung | Bestellmaß = RAM | Drückerhöhe* ab OFF | Torgliederhöhe B |
|---|---|---|---|
| 855–875 x 1.990–2.000 | 990 x 2.058 | 1.050 | 500 |
| 855–875 x 2.115–2.125 | 990 x 2.183 | 1.050 | 531 |
| 980–1.000 x 1.990–2.000 | 1115 x 2.058 | 1.050 | 500 |
| 980–1.000 x 2.115–2.125 | 1115 x 2.183 | 1.050 | 531 |
| Lichtes Fertigmaß der Öffnung | Bestellmaß = RAM | Drückerhöhe* ab OFF | Torgliederhöhe B |
|---|---|---|---|
| 875 x 2.000 | 855 x 1.990 | 1.050 | 500 |
| 875 x 2.125 | 855 x 2.115 | 1.050 | 531 |
| 1.000 x 2.000 | 980 x 1.990 | 1.050 | 500 |
| 875 x 2.125 | 980 x 2.115 | 1.050 | 531 |
| Bestellmaß = RAM | Drückerhöhe* ab OFF | Torgliederhöhe B |
|---|---|---|
| 875 x 2.000 | 1.050 | 500 |
| 875 x 2.125 | 1.050 | 531 |
| 1.000 x 2.000 | 1.050 | 500 |
| 1.000 x 2.125 | 1.050 | 531 |
1-flügelige Nebentüren auf Anfrage
2-flügelige Nebentüren: 1.330–2.500 x 1.960–2.558 mm
| Lichtes Fertigmaß der Öffnung | Bestellmaß = RAM | Drückerhöhe* ab OFF |
|---|---|---|
| 855–875 x 2.115–2.125 | 1.005 x 2.190 | 1.050 |
| 980–1.000 x 2.115–2.125 | 1.130 x 2.190 | 1.050 |
*Drückerhöhen bei Sondergrößen finden Sie in den Einbaudaten
| Lichtes Fertigmaß der Öffnung | Bestellmaß = RAM | Drückerhöhe* ab OFF |
|---|---|---|
| 980–1.000 x 2.115–2.125 | 1.130 x 2.190 | 1.050 |
*Drückerhöhen bei Sondergrößen finden Sie in den Einbaudaten
Wer bei Neubau oder Modernisierung auch beim Garagentor auf ein offenes, elegantes Design setzt, trifft mit einem Aluminium-Rahmentor (DWS P Aluminium) die passende Wahl. Diese Variante eignet sich besonders gut, wenn Tageslicht in die Garage gelangen oder die Belüftung – etwa in Sammelgaragen – verbessert werden soll. Sie ist eine stilvolle Alternative zu geschlossenen Sektionaltoren.

Mit sorgfältig ausgewählten, hochwertig sortierten Hölzern fertigt steinau Design-Holztore in handwerklich perfekter Verarbeitung – Qualität, die man sieht und spürt. Unsere Massivholz-Sektionaltore sind werkseitig doppelt imprägniert und schützen zuverlässig vor Schädlingen und Blaufäule. Für dauerhaften Schutz gegen UV-Strahlen empfehlen wir eine zusätzliche Holzschutzlasur.
Entdecken Sie unser umfangreiches Sortiment an hochwertigen Antrieben und Zubehör für Ihr Garagentor. Von leistungsstarken Garagentorantrieben über praktische Handsender und moderne Steuerungslösungen bis hin zu zuverlässigen Sicherheitsfeatures – hier finden Sie alles, um Ihr Garagentor komfortabel, sicher und perfekt ergänzt auszustatten.
Finden Sie jetzt ihre Niederlassung in der Nähe!
Niederlassung findenKontakt
Social-Media
Suchen nach: