Sporthallentor SP 500

Technik, Sicherheit und Langlebigkeit

Das Sporthallentor SP 500 ist die ideale Lösung für Sport- und Mehrzweckhallen. Es trennt zuverlässig Halle und Geräteräume und erfüllt höchste Anforderungen an Sicherheit, Funktionalität und Design.

Vorteile der langlebigen Konstruktion

  • Stabile Rahmenkonstruktion aus Rechteckrohren mit Verstärkungsstreben für maximale Haltbarkeit.
  • Leiser Torlauf dank hochwertiger Führungsschienen und kugelgelagerter Laufrollen.
  • Sichere Torführung ohne Ausschwingen in die Halle – platzsparend und zuverlässig.

Sicherheit im Fokus

  • Elastischer Fußklemmschutz schützt vor Verletzungen.
  • Komplett verkleidete Gegengewichte verhindern Eingriffe und sorgen für leichtgängige Bedienung.
  • Anschlagdämpfer bremsen das Tor sanft beim Öffnen und Schließen.
  • Ballwurfsicherheit nach DIN 18032-3 geprüft – ideal für Schulen und Sporthallen.

Komfortable Bedienung

  • Drehfallenverriegelung sorgt für eine sichere Arretierung der Torblattecken.
  • Ergonomischer Innengriff – leicht und angenehm zu bedienen.
  • Verletzungssicherer Außengriff – bündig im Torblatt eingelassen.

Flexible Gestaltungsmöglichkeiten

  • Individuelle Farbwahl: Standard in Weißaluminium (RAL 9006), auf Wunsch in allen RAL-Farben.
  • Einbaufertige Vorbereitung für bauseitige Füllungen, fast unsichtbar in die Wand integrierbar.
  • Optionale flächenelastische Prallwand reduziert Anprallkräfte um über 60 %.

Technische Daten & Größen

  • Baurichtmaße bis 5.000 mm Breite und 2.750 mm Höhe möglich.
  • Verschiedene Ausführungen für Standard-Einbau, Hintersturzbeschlag oder MD-Beschlag.
  • Maximale Füllungsgewichte abhängig von Breite und Höhe (Tabellen siehe technische Daten).

Einsatzbereiche

Das Sporthallentor SP 500 ist perfekt für:

  • Schulen und Turnhallen
  • Mehrzweckhallen
  • Sportvereine
  • Kommunale Einrichtungen

Sporthallentore bilden die Abtrennung zwischen Halle und Geräteräumen in Sport- und Mehrzweckhallen.

Als führender Hersteller von Toren, Türen, Zargen und Antrieben in Europa sind wir einer hohen Produkt- und Service-Qualität verpflichtet. Auf dem internationalen Markt setzen wir damit Standards.

Detailbilder

Langlebige Konstruktion

Die stabilen Rechteckrohre mit waagerechten Verstärkungsstreben bieten eine lange Funktionssicherheit sowie extreme Laufruhe.

Sicherer und platzsparender Torlauf

Senkrechte und waagerechte Führungsschienen sorgen für eine sichere Torführung und Anschlagdämpfer für abgebremstes Öffnen und Schließen. Das Tor schwingt beim Öffnen weder aus, noch steht es im geöffneten Zustand in die Halle hinein.

Elastischer Fußklemmschutz

Um die Gefahr von Fußverletzungen zu verringern, ist der untere Torabschluss über die gesamte Torbreite mit einem elastischen Klemmschutz ausgestattet.

Komplett verkleidete Gegengewichte

Schutzkästen sichern die beidseitigen Gegengewichte vollständig gegen Eingreifen. Mit den beiden Gegengewichten öffnet und schließt sich das Tor spielend leicht. Dank der Anschlagdämpfer wird das Tor sanft „abgebremst“. Doppelte Seilzüge sichern das Torblatt gegen Abstürze.

Sichere Laufschienenenden

Die kugelgelagerten Kunststoff-Laufrollen sorgen für weniger Verschleiß und längere Einsatzzeit. Die Laufschienenenden sind stoßsicher verkleidet.

Sichere Verriegelung

Die Drehfallenverriegelung der Sporthallentore fixiert die Torblattecken fest an den Rahmen und schließt dadurch sicherer als herkömmliche Stangenverschlüsse.

Ergonomischer Innengriff

Auf der Geräteraumseite ist das Tor mit einem sternförmigen Torgriff ausgestattet, der optimal in der Hand liegt.

Einbaufertig für bauseitige Füllung

Das Sporthallentor SP 500 ist optimal vorbereitet für eine bauseitige Füllung. Das max. Füllungsgewicht entnehmen Sie bitte den Tabellen. So kann das Tor fast unsichtbar in der Wand integriert werden.

Verletzungssicherer Außengriff

Der Muschelgriff in Aluminium eloxiert, optional auch in Edelstahleffekt eloxiert, ist auf der Außenseite flächenbündig in das Torblatt eingelassen. So sind Verletzungen praktisch ausgeschlossen.

Flächenelastische Prallwand

Die optionale Unterkonstruktion für eine flächenelastische Prallwand reduziert über 60 % der Anprallkräfte.

Für bauseitige aufliegende Füllung

Hinweis:
Bei Toren mit einem Bestellmaß BRH kleiner als 2300 mm kann die nach DIN 18032 geforderte mind. Durchgangshöhe von 2200 mm nicht eingehalten werden.

BRH bis 2.595 mm: 1 waagerechte Strebe
BRH von 2.600 bis 2.750 mm: 2 waagerechte Streben
BRB bis 1.495 mm: keine senkrechte Strebe
BRB von 1.500 bis 4.000 mm: 2 senkrechte Streben
BRB von 4.005 bis 5.000 mm: 4 senkrechte Streben
BRB ab 4.000 mm: Profilverstärkung 60 × 40 mm unten

Maximale Füllungsgewichte in kg / m2

BRH (Höhe) 1.200 1.500 1.750 2.000 2.250 2.500 2.750 3.000 3.250 3.500 3.750 4.000 4.250 4.500 4.750 5.000
2.750 36 30 26 22 20 18 16 14 12 12 10 8 7 6 6 6
2.625 36 32 28 24 20 18 16 14 12 12 10 8 8 7 6 6
2.500 36 36 30 26 24 20 20 18 16 14 12 10 10 10 8 7
2.375 36 36 32 28 24 22 22 20 18 16 14 12 10 9 8 8
2.250 36 36 36 32 28 24 22 20 18 16 14 12 12 10 8 8
2.125 36 36 36 36 32 28 26 22 20 18 16 14 12 10 10 8
2.000 36 36 36 36 30 28 24 22 20 20 18 14 14 12 12 10

BRB Baurichtmaß-Breite

Für bauseitige aufliegende Füllung mit Unterkonstruktion für flächenelastische Prallwand

Hinweis:
Bei Toren mit einem Bestellmaß BRH kleiner als 2300 mm kann die nach DIN 18032 geforderte mind. Durchgangshöhe von 2200 mm nicht eingehalten werden.

BRH bis 2.595 mm: 1 waagerechte Strebe
BRH von 2.600 bis 2.750 mm: 2 waagerechte Streben
BRB bis 1.495 mm: keine senkrechte Strebe
BRB von 1.500 bis 4.000 mm: 2 senkrechte Streben
BRB von 4.005 bis 5.000 mm: 4 senkrechte Streben
BRB ab 4.000 mm: Profilverstärkung 60 × 40 mm unten

Maximale Füllungsgewichte in kg / m2

BRH
(Höhe)
1.200 1.500 1.750 2.000 2.250 2.500 2.750 3.000 3.250 3.500 3.750 4.000 4.250 4.500 4.750 5.000
2.750 32 26 20 18 16 14 12 10 8 8 6 6
2.625 34 28 22 18 16 16 14 12 10 10 8 8
2.500 36 30 26 22 18 18 16 14 12 10 8 8 6
2.375 36 32 26 24 20 18 16 14 14 12 10 10 8 6
2.250 36 34 30 26 22 20 18 16 14 12 12 10 8 6 6
2.125 36 36 32 28 24 22 20 18 16 14 12 12 8 6 6
2.000 36 36 34 30 26 22 20 18 16 14 12 10 10 10 8 6

BRB Baurichtmaß-Breite

 

Bitte beachten: 
Der Aufbau der Prallwand-Unterkonstruktion ist abhängig von der Füllung und muss vor Auftragsbearbeitung technisch klargestellt sein.

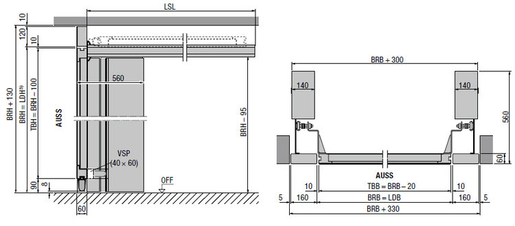
Größen und Einbaudaten

Einbau in der Öffnung (Standard)

BRH LSL
≤ 2.250 2.250
2.255 – 2.500 2.500
2.505 – 2.750 2.750

Erläuterungen
BMB Bestellmaß Breite
BMH Bestellmaß Höhe
BRB Baurichtmaß-Breite
BRH Baurichtmaß-Höhe
TBB Torblatt Breite
TBH Torblatt Höhe
LDB Lichte Durchgangsbreite
LDH Lichte Durchgangshöhe
LSL Laufschienenlänge
PWRB Prallwandrahmen Breite
PWRH Prallwandrahmen Höhe
OFF Oberkante Fertigfußboden
AUSS Außen
VSP Verstärkungsprofil ab BRB ≥ 4500
Y Dicke der aufliegenden Füllung

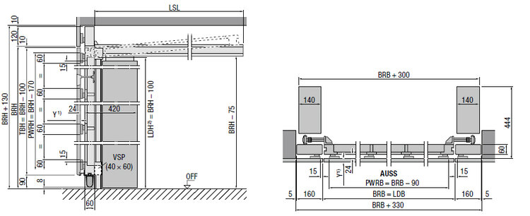
Einbau in der Öffnung mit Unterkonstruktion für flächenelastische Prallwand

BRH LSL
≤ 2.250 2.250
2.255 – 2.500 2.500
2.505 – 2.750 2.750

Maße in mm

Einbau in der Öffnung mit Hintersturzbeschlag

BRH LSL
≤ 2.250 2.350
2.255 – 2.500 2.600
2.505 – 2.750 2.850

1) Y = 12 – 36
2) LDH mit VSP = BRH – 140
3) LDH mit VSP = BRH – 40
4) LDH mit VSP = BRH – 20
(BRH ≤ 2375)

Einbau in der Öffnung mit MD-Beschlag

BRH LSL
≤ 2.250 2.250
2.255 – 2.500 2.255 – 2.500
2.505 – 2.750 2.505 – 2.750

Hinweis: BRH ≤ 2.375 mm

Unsere Produkte überzeugen Sie?

Finden Sie jetzt ihre Niederlassung in der Nähe!

Niederlassung finden
Schließen
Menü schließen