Doppel- und Sammel­garagentore

Wer ein Garagentor für Doppelgaragen oder Sammelgaragen sucht, erwartet höchste Qualität, geprüfte Sicherheit und langlebige Technik. Unsere modernen Garagentore mit Antrieb überzeugen durch ihre leise Funktionsweise, zuverlässige Sicherheitssysteme und flexible Gestaltungsoptionen – ideal für Wohnanlagen, Tiefgaragen, Hotels oder Bürogebäude.

Modelle für jeden Einsatzbereich:

  • Kipptor ET 450 – Wirtschaftliche Lösung für Sammelgaragen mit hoher Nutzung.
  • Kipptor ET 500 Serie 3 – Ausschwenkfrei, besonders leise, auch mit Schlupftür erhältlich.
  • Schiebetor ST 500 – Minimaler Platzbedarf, leiser Lauf, ideal für beengte Einbausituationen.
  • Schwingtor N 500 – Bewährt für Doppelgaragen und Sammelgaragen mit bis zu 100 Stellplätzen.
  • Sammelgaragen

    Soft-Start
    Soft-Stopp

  • Sammelgaragen

    Öffnungsgeschwindigkeit
    bis zu 0,5 m/s

  • Sammelgaragen

    Montage- und
    servicefreundlich

  • Sammelgaragen

    Geprüft und
    zertifiziert

  • Sammelgaragen

    Hörmann BlueControl App
    beim Antrieb ITO 500 FU und Steuerung 560

Vorteile unserer Garagentore im Überblick:

  • Geprüfte Qualität
    • Jedes Doppelgaragentor und Sammelgaragentor wird als geprüfte Einheit aus Tor und Antrieb zertifiziert – für einwandfreie Funktion und maximale Sicherheit.
  • Flüsterleiser Betrieb
    • Dank innovativer Schwingungsisolatoren laufen unsere leisen Garagentore mit weniger als 30 dB – perfekt für Gebäude mit hoher Nutzung.
  • Sicherheit an erster Stelle
    • Schutz vor Quetschungen durch offene Konstruktion
    • Zusätzliche Sicherheitsprofile an den Schließkanten
    • Integrierte Lichtschranken für optimalen Personenschutz
  • Komfortable Zugänge
    • Wählen Sie optional Nebentüren oder Schlupftüren, um Ihre Garage bequem betreten zu können, ohne das gesamte Tor zu öffnen.
  • Moderne Antriebstechnik
    • Soft-Start & Soft-Stopp für sanftes Öffnen und Schließen
    • Schnelle Toröffnung bis 0,5 m/s
    • Smarte Steuerung per App – ideal für Service, Wartung und Bedienung
  • Intelligente Bedienung
    • Handsender, Taster, Standsäulen und Signalleuchten
    • BiSecur-Funktechnik mit zertifizierter Verschlüsselung
    • Verwaltung von bis zu 1.000 Handsendern für Sammelgaragen

Kipptor

ET 450

Motive

Motiv 402

Aufliegende, gesickte Stahl-Blechfüllung

Motiv 414 nur für ET 450

Aufliegendes, gesicktes Stahlblech mit Lochblechfüllung, rund oder quadratisch, Lüftungsquerschnitt 46,1% (rund) bzw. 44,4% (quadratisch)

Motiv 416 nur für ET 450

Aufliegendes, gesicktes Stahlblech mit Gitterfüllung 50 × 50 mm im unteren oder oberen Bereich, Lüftungsquerschnitt 23,2%

Motiv 420

Innenliegende, glatte Aluminium-Blechfüllung

Motiv 470

Füllung mit Aluminium-Stäben 20 × 20 × 2 mm, Lüftungsquerschnitt 80%

Farben

Standardfarbe

Alle Farbangaben in Anlehnung an RAL.

RAL 9016

Verkehrweiß

17 Vorzugsfarben

Alle Farbangaben in Anlehnung an RAL.

RAL 9006

Weißaluminium

RAL 9007

Graualuminium

8028

Terrabraun

8003

Lehmbraun

8001

Ockerbraun

RAL 7040

Fenstergrau

RAL 7035

Lichtgrau

RAL 7030

Steingrau

RAL 7016

Anthrazitgrau

RAL 6009

Tannengrün

RAL 6005

Moosgrün

RAL 5014

Taubenblau

RAL 5011

Stahlblau

RAL 5003

Saphirblau

RAL 3003

Rubinrot

RAL 1015

Hellelfenbein

Ausstattung

Sanfter Torlauf ohne Ausschwenken des Torblatts

Dank der präzisen Rollenführung in der Führungsschiene bewegt sich das Tor leise und äußerst genau.

Platzsparende Einbaumaße

Das ET 450 benötigt nur wenig Platz. In Kombination mit dem Antrieb SupraMatic HT 3 beträgt der Sturzbedarf lediglich 120 mm.

Stabile und sichere Konstruktion

Die langlebige, wartungsarme Torkonstruktion mit verschleißfreier Gegengewichtstechnik (250.000 Zyklen), doppelten Seilzügen, stabilem 80 x 60 mm Torblattrahmen sowie serienmäßig verzinkten, optional in Torfarbe erhältlichen Zargen- und Gewichtskästen bietet maximale Sicherheit und Beständigkeit.

Optimale Sicherheit

Die offene Konstruktion bietet höchste Bediensicherheit im täglichen Einsatz, zwei integrierten Lichtschranken zum Personenschutz sind bereits in der Zarge vormontiert.

Antriebe und Zubehör

Auf die Seite Zufahrtskontrollsysteme verlinken

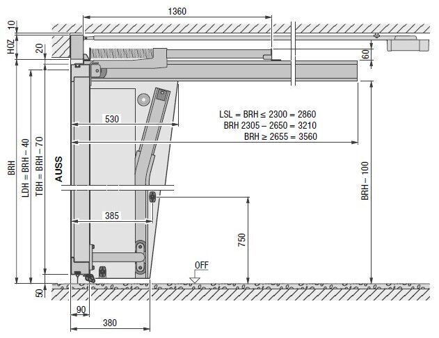
Einbaudaten

ET450 Einbau hinter der Öffnung

Vertikalschnitt

Horizontalschnitt

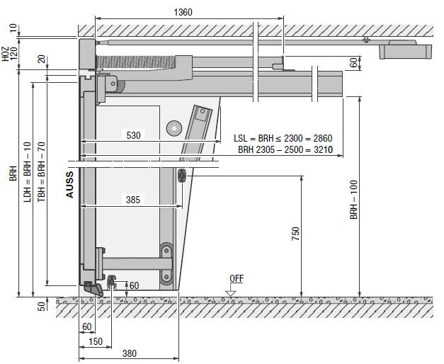
ET450 Einbau in der Öffnung (flächenbündig)

Vertikalschnitt

Horizontalschnitt

Schwingtor

N500

Motive

Motiv 400

Rahmen für innenliegende, bauseitige Füllung

Motiv 402

Aufliegende, gesickte Stahl-Blechfüllung

Motiv 403

Innenliegende Schweißgitterfüllung, Lüftungsquerschnitt 85%

Motiv 405

Rahmen für aufliegende, bauseitige Beplankung

Motiv 412

Innenliegende Lochblechfüllung, Stahl-Lochblech, mit runden Aussparungen, Lüftungsquerschnitt 46,1%

Motiv 413

Innenliegende Lochblechfüllung mit quadratischen Aussparungen, Lüftungsquerschnitt 44,4%

Motiv 420

Innenliegende, glatte Aluminium-Blechfüllung

Motiv 422

Aufliegendes, glattes Aluminiumblech

Motiv 440

Innenliegende Streckgitterfüllung, Lüftungsquerschnitt 50%

Farben

Standardfarbe

RAL 9016

Verkehrweiß

7 Vorzugsfarben

Alle Farbangaben in Anlehnung an RAL.

RAL 9007

Graualuminium

RAL 8028

Terrabraun

RAL 7040

Fenstergrau

RAL 7035

Lichtgrau

RAL 7016

Anthrazitgrau

RAL 6009

Tannengrün

RAL 1015

Hellelfenbein

Ausstattung

Stimmige Toransicht

Für eine harmonische Toransicht sind Torblatt und Zargenrahmen flächenbündig angeordnet und farbgleich. Das Tor kann flächenbündig mit der Fassade, in der Laibung oder auch dahinter montiert werden.

Sicherer Öffnungsmechanismus

Stabile Hebelarme mit kugelgelagerten Lagerböcken sowie kugelgelagerte Laufrollen lassen das Tor ruhig, sicher und sehr präzise laufen.

Gut abgedichtet

Doppelte Dichtungen an der Unterkante des Tores verhindern wirkungsvoll das Eindringen von Laub, Hagel und Schnee.

Komfort mit Antrieb

Das Schwingtor N 500 kann mit den Antrieben Supra­ Matic E / P ausgestattet werden.

Antriebe und Zubehör

Auf die Seite Zufahrtskontrollsysteme verlinken

Einbaudaten

N500 Einbau hinter der Öffnung
 

Vertikalschnitt

Horizontalschnitt

ET450 Einbau in der Öffnung 
(flächenbündig mit der Fassade)

Vertikalschnitt

Horizontalschnitt

Kipptor

ET500

Motive

Motiv 400

Rahmen für innenliegende, bauseitige Füllung

Motiv 402

Aufliegende, gesickte Stahl-Blechfüllung

Motiv 403

Innenliegende Schweißgitterfüllung, Lüftungsquerschnitt 85%

Motiv 405

Rahmen für aufliegende, bauseitige Beplankung

Motiv 412

Innenliegende Lochblechfüllung, Stahl-Lochblech, mit runden Aussparungen, Lüftungsquerschnitt 46,1%

Motiv 413

Innenliegende Lochblechfüllung mit quadratischen Aussparungen, Lüftungsquerschnitt 44,4%

Motiv 414

Aufliegendes, gesicktes Stahlblech mit Lochblechfüllung, rund oder quadratisch, Lüftungsquerschnitt 46,1% (rund) bzw. 44,4% (quadratisch)

Motiv 420

Innenliegende, glatte Aluminium-Blechfüllung

Motiv 422

Aufliegendes, glattes Aluminiumblech

Motiv 440

Innenliegende Streckgitterfüllung, Lüftungsquerschnitt 50%

Motiv 470

Füllung mit Aluminium-Stäben 20 × 20 × 2 mm, Lüftungsquerschnitt 80%

Motiv 498

Füllung aus Stahl oder Aluminium, frei wählbar

Motiv 499

Individuelles Motiv, frei kombinierte Motivvarianten oder aufliegende Füllung

Motiv 480

Innenliegende Lamellenfüllung, auch erhältlich mit Lüftungsgitter, Aluminiumrahmen, Verglasung und Streckgitter-Füllung

Motiv 497

Füllung aus dekorativen Laminaten
(HPL-Platten) frei wählbar

Dekore

Nur für Motiv 497 - dekorative Laminate (Fassadenplatten) für eine harmonische Fassadenansicht.

Italian Walnut

NW08 Matt

Hardened Brown

NM05 Matt

Natural Chalkstone

NA12 Matt

Halmstad

NW28 Matt

Farben

Standardfarbe

RAL 9006

Weißaluminium

17 Vorzugsfarben

Alle Farbangaben in Anlehnung an RAL.

RAL 9016

Verkehrweiß

RAL 9007

Graualuminium

RAL 8028

Terrabraun

RAL 8003

Lehmbraun

RAL 8001

Ockerbraun

RAL 7040

Fenstergrau

RAL 7035

Lichtgrau

RAL 7030

Steingrau

RAL 7016

Anthrazitgrau

RAL 6009

Tannengrün

RAL 6005

Moosgrün

RAL 5014

Taubenblau

RAL 5011

Stahlblau

RAL 5003

Saphirblau

RAL 3003

Rubinrot

RAL 1015

Hellelfenbein

Ausstattung

Ruhiger Torlauf ohne Ausschwenken des Torblatts

Die exakte Rollenführung in der Führungsschiene lässt das Tor leise und äußerst präzise laufen.

Kompakte Einbaumaße

Das ET 500 Serie 3 benötigt dank minimalem Sturz- (120–200 mm), seitlichem Anschlag- (200 mm) und Zargentiefenbedarf (max. 530 mm) besonders wenig Platz, wodurch sowohl neben dem Tor als auch im Deckenbereich zusätzlicher Raum frei bleibt.

Robuste und sichere Konstruktion

Die wartungsarme Torkonstruktion mit verschleißfreier Gegengewichtstechnik (250.000 Zyklen), doppelten Seilzügen, robustem 80 x 90 mm Torblattrahmen sowie farblich abgestimmten Zargen- und Gewichtskästen bietet höchste Sicherheit und Langlebigkeit.

Vorbildliche Sicherheit

dank zwei integrierter Lichtschranken-Sets.

Antriebe und Zubehör

Auf die Seite Zufahrtskontrollsysteme verlinken

Einbaudaten

ET500-3 Einbau hinter der Öffnung

Vertikalschnitt

Horizontalschnitt

ET500 Einbau in der Öffnung (flächenbündig) 

Vertikalschnitt

Horizontalschnitt

Schiebetor

ST 500

Motive

Motiv 400

Rahmen für innenliegende, bauseitige Füllung

Motiv 402

Aufliegende, gesickte Stahl-Blechfüllung

Motiv 403

Innenliegende Schweißgitterfüllung, Lüftungsquerschnitt 85%

Motiv 405

Rahmen für aufliegende, bauseitige Beplankung

Motiv 412

Innenliegende Lochblechfüllung, Stahl-Lochblech, mit runden Aussparungen, Lüftungsquerschnitt 46,1%

Motiv 413

Innenliegende Lochblechfüllung mit quadratischen Aussparungen, Lüftungsquerschnitt 44,4%

Motiv 414

Aufliegendes, gesicktes Stahlblech mit Lochblechfüllung, rund oder quadratisch, Lüftungsquerschnitt 46,1% (rund) bzw. 44,4% (quadratisch)

Motiv 420

Innenliegende, glatte Aluminium-Blechfüllung

Motiv 422

Aufliegendes, glattes Aluminiumblech

Motiv 440

Innenliegende Streckgitterfüllung, Lüftungsquerschnitt 50%

Motiv 470

Füllung mit Aluminium-Stäben 20 × 20 × 2 mm, Lüftungsquerschnitt 80%

Motiv 498

Füllung aus Stahl oder Aluminium, frei wählbar

Motiv 499

Individuelles Motiv, frei kombinierte Motivvarianten oder aufliegende Füllung

Motiv 480

Innenliegende Lamellenfüllung, auch erhältlich mit Lüftungsgitter, Aluminiumrahmen, Verglasung und Streckgitter-Füllung

Motiv 497

Füllung aus dekorativen Laminaten
(HPL-Platten) frei wählbar

Dekore

Nur für Motiv 497 - dekorative Laminate (Fassadenplatten) für eine harmonische Fassadenansicht.

Italian Walnut

NW08 Matt

Hardened Brown

NM05 Matt

Natural Chalkstone

NA12 Matt

Halmstad

NW28 Matt

Farben

Standardfarbe

RAL 9006

Weißaluminium

17 Vorzugsfarben

Alle Farbangaben in Anlehnung an RAL.

RAL 9016

Verkehrweiß

RAL 9007

Graualuminium

8028

Terrabraun

8003

Lehmbraun

8001

Ockerbraun

RAL 7040

Fenstergrau

RAL 7035

Lichtgrau

RAL 7030

Steingrau

RAL 7016

Anthrazitgrau

RAL 6009

Tannengrün

RAL 6005

Moosgrün

RAL 5014

Taubenblau

RAL 5011

Stahlblau

RAL 5003

Saphirblau

RAL 3003

Rubinrot

RAL 1015

Hellelfenbein

Ausstattung

Besonders platzsparend

Die geringe Einbautiefe von 450 mm inkl. Antrieb ermöglicht den Einbau auch dort, wo Abhängungen an der Garagendecke montiert sind. Dank serienmäßigem Zargenrahmen ist die Montage selbst dann möglich, wenn kein Sturz vorhanden ist.

Ruhiger und sicherer Torlauf

Doppelte Laufrollen in der oberen Führungsschiene und kugelgelagerte Führungsrollen am Boden bieten einen ruhigen, leisen Torlauf und ein fast geräuschloses Öffnen und Schließen. Auch im Abstellbereich erhält das Tor dadurch einen sicheren Halt.

Vorbildliche Sicherheit

Serienmäßige Sicherheitsprofile an den Schließkanten des Tores und eine standardmäßig vormontierte Lichtschranke im Öffnungsbereich bieten umfassenden Schutz vor Verletzungen und Sachschäden.

Antriebe und Zubehör

Auf die Seite Zufahrtskontrollsysteme verlinken

Einbaudaten

ST500 Einbau hinter der Öffnung

Vertikalschnitt

Horizontalschnitt

Downloads

Informieren Sie sich jetzt – klicken Sie auf eine Broschüre für weiterführende Details.

Unsere Produkte überzeugen Sie?

Finden Sie jetzt ihre Niederlassung in der Nähe!

Niederlassung finden
Schließen
Menü schließen