Holz-Pendeltüren

Sicher. Modern. Einfach.

Unsere Holz-Pendeltüren vereinen zeitlose Robustheit und Zweckmäßigkeit dank ihrer kratzfesten Durat-Oberfläche. Mit einer Palette von 70 Farben und Holzdekoren passen sie sich Ihrem individuellen Shop-Konzept an. Die Edelstahlbänder bieten Stabilität und mühelose Bewegung. Die schlanke Konstruktion gewährleistet einen großzügigen Durchgang, und die Türen sind wartungsfrei sowie stoßfest.

Optional kann die Tür arretiert und leicht geschlossen werden, was außerhalb der Geschäftszeiten praktisch ist. Die einfache Installation in Bestands- oder Neubauten erfordert keine Holzzarge, sondern erfolgt direkt in der Leibung mithilfe eines Edelstahlprofils oder Montageplatten. Für Privathäuser sind Pendeltüren mit klassischem Bullauge ebenfalls ein Blickfang – wir beraten Sie gerne!

Produkteigenschaften

  • 1-flüglig
    1-flüglig
  • 2-flüglig
    2-flüglig
  • Personendurchgang
    Personendurchgang
  • Individual
    Individual
Filtern und sortieren

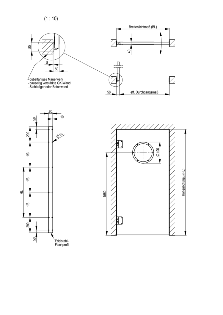
1-flüglige Ausführung, Öffnungswinkel 2 x 90°, Breite in mm: 700 - 1.250 Höhe in mm: 1.800 - 2.500

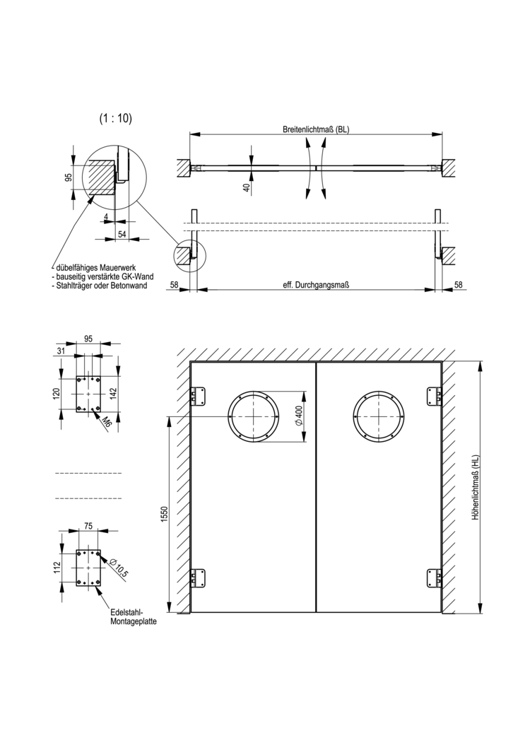
2-flüglige Ausführung, Öffnungswinkel 2 x 90°, Breite in mm: 1.400 - 2.500 Höhe in mm: 1.800 - 2.500

Serienmäßige Ausstattung

Pendeltüren aus Holz

Vergleichstabelle

Türtyp 1-flüglig 2-flüglig  
Ausführung  
Material Vollspanplatte Vollspanplatte  
Türblatt  
Türblattstärke in mm 40 40  
Breite in mm 700 – 1.250 1.400 – 2.500  
Höhe in mm 1.800¹ – 2.500 1.800¹ – 2.500  
Verglasung  
rund  
VSG Glas (mm) 4 4  
Verglasungsrahmen  
Edelstahl V2A  
Band      
Edelstahl V2A  

■ = Serienmäßige Ausstattung, 1 kleinere Größe auf Anfrage

Optionale Ausstattung

Feinjustrierung (für alle Pendeltüren)

Durch Einstellen der vier Madenschrauben je Band können kleine Unebenheiten an der Wand ausgeglichen werden. Mit dieser Funktion können auch die Türflügel genau und parallel ausgerichtet werden.

Edelstahl-Rammschutz (für HPL-/Holz-Pendeltüren)

Legen Sie Wert auf eine hochwertigere Ansicht bei PE Pendeltüren oder auf Materialgleichheit bei der Edelstahl-Pendeltür? Dann ist der 1,5 mm starke Rammschutz in Edelstahl die optimale Wahl.

Farben & Dekore

Dekore für Holz-Pendeltüren

RAL 9016 Weißlack

RAL 7035

Lichtgrau

RAL 7037

Staubgrau

Esche weiß

Französische Buche

Bütte weiß

Struktur Graueiche (quer)

Struktur Wildeiche (quer)

Struktur Pinie gebürstet

Struktur Salzeiche gebürstet

Struktur Weiß gebürstet (quer)

Struktur Alpineiche (quer)

Struktur Nordeiche (quer)

Struktur Natureiche (quer)

Struktur Lärche dunkel gebürstet (quer)

Struktur Lärche hell gebürstet (quer)

Verglasungen

für Edelstahl- und Holz-Pendeltüren

Edelstahl-Pendeltüren überzeugen mit 8 mm starkem VSG Sicherheitsglas. Edelstahltüren werden immer mit einem Verglasungsrahmen aus Edelstahl V2A (optional V4A) geliefert.

Verglasungsgrößen und -formen

2 Größen sind serienmäßig erhältlich:

  • 300 mm und 400 mm rund

2 Größen und 2 Formen sind optional erhältlich:

  • 400 x 400 mm quadratisch
  • 400 x 600 mm rechteckig
  • 600 x 600 mm quadratisch

Bei einer Türflügelbreite unter 700 mm sind die Verglasungen schmaler als oben angegeben und müssen individuell angepasst werden. Serienmäßig liegt die Fenstermitte bei 1.550 mm Höhe, kundenindividuelle Anpassungen sind möglich.

Verglasung Holz-Pendeltür
Holz-Pendeltüren besitzen ein 4 mm starkem VSG Sicherheitsglas.

Verglasungsgrößen und -formen

  • 400 mm rund

Rund

Rechteckig

Quadratisch

Technik

Pendeltür aus Holz und HPL mit Montageplatte - 1-flüglig

Pendeltür aus Holz und HPL mit Montageplatte - 2-flüglig

Downloads

Informieren Sie sich jetzt – klicken Sie auf eine Broschüre für weiterführende Details.

Unsere Produkte überzeugen Sie?

Finden Sie jetzt ihre Niederlassung in der Nähe!

Niederlassung finden
Schließen
Menü schließen